300.000 Immobilien in Österreich
Österreichs größtes Immobilienportal

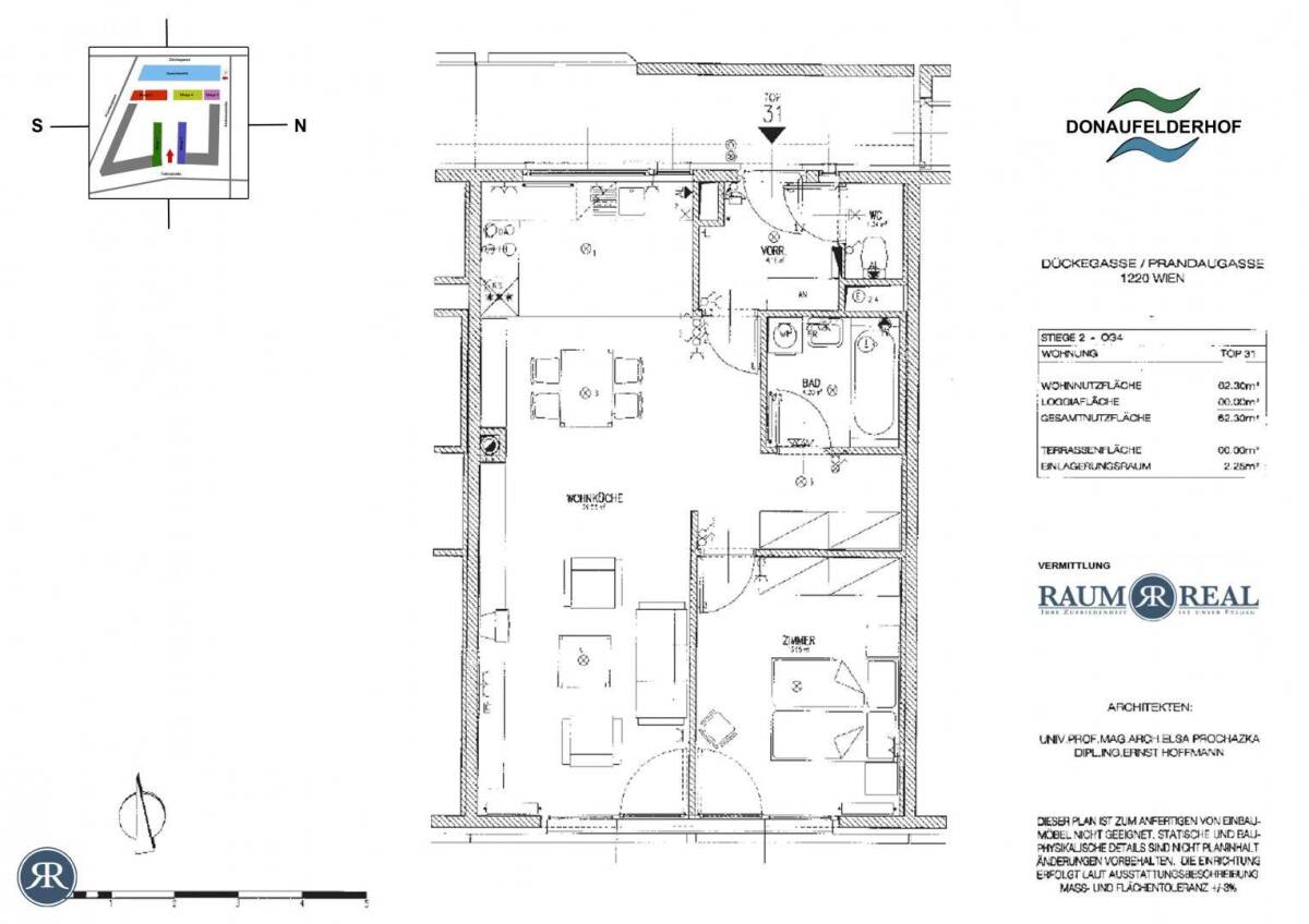
2-Zimmer im 2. OG / Sofortbezug nach Generalsanierung

Zurück zu den Suchergebnissen
Angebot auf Scout24
auf immi.at seit 01.12.2020
Kategorie Wohnung
Adresse 1220 Wien
Wien 22.,Donaustadt
Wien
Preis EUR 840
Preis pro m2 EUR 13,55
Typ Miete
provisionsfrei nein
Fläche 62m2
Räume 2

VielseitigDas Wohnareal Donaufelderhof besteht aus 5 Stiegen und wurde 1997 errichtet. Großzügige Grünflächen und freundlich gestaltete Plätze verleihen diesem Wohnprojekt ein ganz besonderes Ambiente.Alle Wohnungen, die nun zur Neuvermietung kommen, wurden vorher aufwendig saniert und auf den neuesten Ausstattungsstand gebracht. So sind nicht nur sämtliche Leitungen neu, sondern auch die Türen, der Bodenbelag (Parkett und Fliesen), WC und Bad sowie die Küche.Auf der zur Liegenschaft gehörenden, aber vom Wohnbereich abgewandten Gewerbezeile, befindet sich ein großer „Roof-Top“-Sportplatz, den Sie ebenso nutzen können, wie die vorhandenen Waschküchen.Informieren Sie sich auf www.tokiostrasse.at über alle freien Wohnungen und Gewerbeeinheiten in dieser Anlage.ÖffentlichU-Bahn: U1 – Station Kagran/Donauzentrum Straßenbahn: 2, 25, 26Bus: 22A, 27A, 94A / N20 + N25IndividuellAnbindung zur Donauuferautobahn und somit zur Südosttangente, in 11 Minuten beim Knoten Prater, bzw. in 8 Minuten beim Knoten Kaisermühlen.InfrastrukturDer Donaufelderhof befindet sich in der Tokiostraße. Alle wichtigen Einkaufsmöglichkeiten – vom Supermarkt über Drogerie bis hin zum Einkaufszentrum Donauzentrum, sind in wenigen Minuten zu Fuß zu erreichen. Für Ihre Kinder sind Kindergärten, Volksschule und Gymnasium schnell erreicht.ZusätzlichEin Garagenplatz kann in der hauseigenen Tiefgarage um € 75/Monat angemietet werden.Heizung und Warmwasser werden gesondert abgerechnet.AbweichungenÄnderungen der Bestandsflächen können nicht gänzlich ausgeschlossen werden. Entsprechende Abweichungen bis max. 5% lassen die Verbindlichkeit des Anbots bzw. des bereits zustande gekommenen Bestandsvertrages unberührt und werden in diesem Fall lediglich die tatsächlichen Flächenausmaße und der aliquote Mietzins samt anteiligen Betriebskosten und Umsatzsteuer angepasst. Sofern die Abweichungen über 5% hinausgehen, haben beide Vertragsparteien die Möglichkeit, vom Vertrag zurückzutreten.Infrastruktur / EntfernungenGesundheit Arzt <1.000m Apotheke <500m Klinik <2.500m Krankenhaus <3.000m Kinder & Schulen Schule <500m Kindergarten <500m Universität <1.000m Höhere Schule <1.000m Nahversorgung Supermarkt <500m Bäckerei <1.000m Einkaufszentrum <1.000m Sonstige Bank <1.000m Geldautomat <1.000m Post <1.000m Polizei <1.000m Verkehr Bus <500m Straßenbahn <500m U-Bahn <1.000m Bahnhof <1.000m Autobahnanschluss <2.500m Angaben Entfernung Luftlinie / Quelle: OpenStreetMap

Zuletzt besuchte Einträge