300.000 Immobilien in Österreich
Österreichs größtes Immobilienportal

MODERNE BÜROFLÄCHE

Angebot auf Scout24
auf immi.at seit 02.09.2020
Kategorie Gewerbe, Büro, Praxis
Adresse 2100 Korneuburg
Korneuburg
Niederösterreich
Preis EUR 4.583
Preis pro m2 EUR 15,59
Typ Miete
provisionsfrei nein
Fläche 294m2
Räume 6

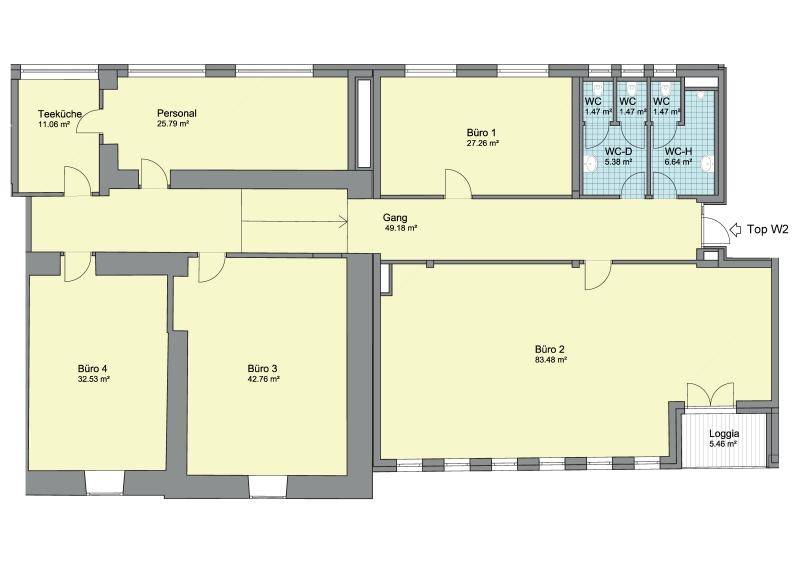
Zur Vermietung gelangt eine moderne Bürofläche im Projekt Karrée Korneuburg in der Wienerstraße. Top W02 im 2.OG RAUMAUFTEILUNG: 3 Büroräume, ca. 27 m² bis 42 m² 1 Büroraum, ca. 83 m² und Loggia, ca. 6 m² 1 Personalraum 1 Teeküche 2 Damen- / 2 Herren-Toiletten Gang - vom Gang aus sind alle Räume zentral begehbar ERSTBEZUG AUSSTATTUNG: Teppichboden Die Bürofläche ist im 2. OG und durch die bodentiefen Fenster sehr hell und freundlich. Im Projekt ist eine Tiefgarage und ein Personenlift vorhanden. Auf Anfrage können Parkplätze angemietet werden. DAS PROJEKT Im Herzen der wunderschönen Stadt Korneuburg an der Donau ist iin bester Zentrumslage das einzigartige Projekt "Karrée Korneuburg“ entstanden. Hier wurde ein architektonisches Schmuckstück geschaffen, das Alt- und Neubau bestens verbindet. 71 Wohnungen sowie mehrere Büro- und Geschäftsflächen, die sich in verschiedene Baukörper gliedern. Die etwa 2 200 m² Büro- und Einzelhandelsflächen verfügen aufgrund des besonderen Standorts im Herzen Korneuburgs über hohe Repräsentativität. In unmittelbarer Nähe befinden sich Restaurants, Nahversorger, Schulen und Sehenswürdigkeiten. Auch die Nähe zu Wien ist ideal, rasch gelangt man in die Wiener City, ob Sie nun öffentlich oder per Auto über die Donauufer-Autobahn fahren: - Fahrzeit Korneuburg – Schwedenplatz: ca. 20 Min. (PKW) - Fahrzeit Korneuburg – Bahnhof Wien Mitte: ca. 21 Min. (Zug) Der Bahnhof Korneuburg ist in 6 min. zu Fuß erreichbar Die angeführten Betriebskosten beruhen auf Schätzungen von monatl. ca. EUR 2,50 netto pro m² (exkl. Heizkosten). Wir weisen in diesem Zusammenhang darauf hin, dass die angeführten Kosten Grobschätzungen darstellen und sich ändern können.

Zuletzt besuchte Einträge