300.000 Immobilien in Österreich
Österreichs größtes Immobilienportal

Attraktive Gewerbeeinheit in zentraler Lage nahe Hauptbahnhof!

Angebot auf WohnNet
auf immi.at seit 17.12.2025
Kategorie Einzelhandel
Adresse 5020 Salzburg
Salzburg(Stadt)
Salzburg
Preis k.A.
Preis pro m2 k.A.
Typ Kauf
provisionsfrei nein
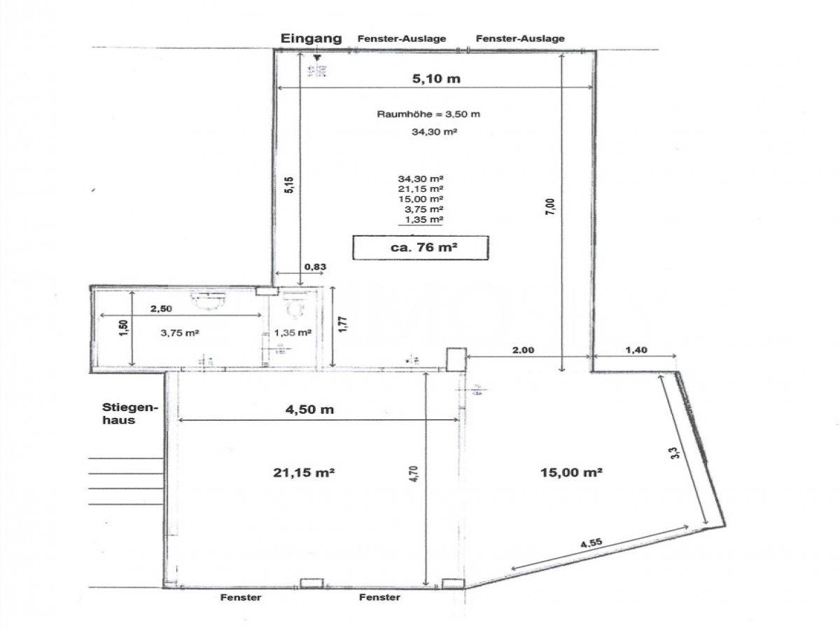
Fläche 76m2
Räume 2

Attraktive Gewerbeeinheit in zentraler Lage – Ihr neuer Standort! Wir freuen uns, Ihnen eine hervorragend gelegene Gewerbeeinheit in einem Wohn- und Geschäftshaus anzubieten. Diese attraktive Einheit, die derzeit vom Eigentümer genutzt wird, besticht durch ihre zentrale Lage und die hohe Kundenfrequenz, die sie zu einem idealen Standort für Ihr zukünftiges Geschäft macht. Die Gewerbeeinheit wurde im Jahr 1968 erbaut und bietet eine Gesamtfläche von 76 m². Der Boden ist mit pflegeleichten Fliesen ausgestattet, die sowohl robust als auch ansprechend sind. Die Einheit verfügt über eine sanitäre Einrichtung (WC) sowie eine kleine Küche, die Ihnen einen schnellen und unkomplizierten Start für Ihr Geschäft ermöglicht. Mit einer großzügigen Ladenfläche von 76 m² eignet sich diese Einheit ideal für verschiedene Geschäftszwecke. Die Möglichkeiten sind vielfältig und bieten Ihnen den Raum, Ihre Ideen zu verwirklichen. Zudem stehen direkt vor dem Haus öffentliche Parkplätze zur Verfügung, was den Zugang für Ihre Kunden erheblich erleichtert. Die Lage der Gewerbeeinheit ist ein weiteres Highlight: Sie befindet sich in unmittelbarer Nähe zum Hauptbahnhof in Salzburg auf der Ost-Seite. Diese zentrale und gut frequentierte Lage sorgt nicht nur für eine hohe Sichtbarkeit Ihres Unternehmens, sondern auch für einen leichten Zugang für Ihre Kunden. Nutzen Sie diese einmalige Gelegenheit und sichern Sie sich diesen attraktiven Standort für Ihr Unternehmen! Bei Fragen oder zur Vereinbarung eines Besichtigungstermins stehen wir Ihnen jederzeit gerne zur Verfügung. Sollte ich Ihr Interesse geweckt haben, so vereinbaren Sie zeitnah unter 0676/5611916 (Herr Jannasch) einen ganz persönlichen Besichtigungstermin. Schulen: In Salzburg befinden sich zahlreiche Schulen und Universitäten. Einkaufsmöglichkeiten: Zahlreiche Geschäfte, Tankstelle etc. im näherem Umfeld. Öffentlicher Verkehr: Hauptbahnhof Salzburg (Haupteingang) nur ca. 250m entfernt, Bushaltestelle nur ca. 50m.

Zuletzt besuchte Einträge