Modern wohnen am Stadtpark Atzgersdorf
| Angebot auf | FMH |
| auf immi.at seit | 10.03.2026 |
| Kategorie | Anlage-Vorsorgewohnung |
| Adresse | 1230 Wien Wien 23.,Liesing Wien |
| Preis | EUR 312.500 |
| Preis pro m2 | EUR 5.896,23 |
| Typ | Kauf |
| provisionsfrei | ja |
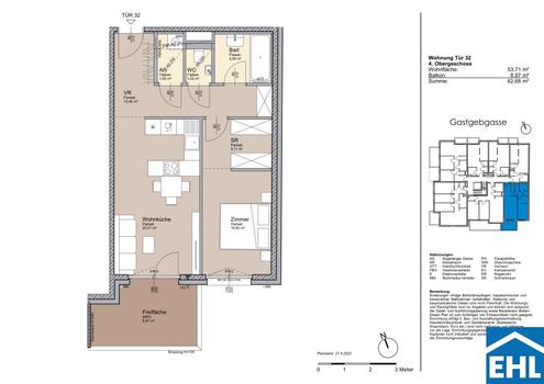
| Fläche | 53m2 |
| Räume | 2 |
Ein Investment mit Stil und Verantwortung Zeitlos. Nachhaltig. Wertbeständig. Das Wohnprojekt beim Stadtpark Atzgersdorf und der Liesing vereint architektonische Eleganz mit zukunftsorientierter Bauweise und bietet Anleger:innen die Möglichkeit, in eine Immobilie mit hervorragendem Entwicklungspotenzial zu investieren. Auf fünf Etagen und zwei Dachgeschossen entstehen 38 hochwertige Eigentumswohnungen, die durch nachhaltige Bauweise, klare Architektur und intelligente Grundrisse überzeugen. Das Projekt kombiniert urbanen Lifestyle mit ökologischer Verantwortung eine Kombination, die in der Nachfrage von Eigennutzer:innen wie auch Mieter:innen zunehmend im Vordergrund steht. Fakten im Überblick 38 Eigentumswohnungen mit 2 bis 4 Zimmern Wohnflächen von ca. 39 bis 109 m² CO-neutrales Energiesystem Top-Vermietungslage im Süden Wiens Hohe Wertbeständigkeit durch nachhaltige Bauweise und steigende Nachfrage Nachhaltige Wertanlage in bester Lage Die Immobilie befindet sich im Herzen von Atzgersdorf, einem der dynamischsten Stadtentwicklungsgebiete Wiens. Dank der Nähe zum Stadtpark Atzgersdorf, dem Kulturzentrum F23 sowie zu Schulen, Nahversorgern und öffentlichen Verkehrsmitteln bietet die Lage sowohl hohe Lebensqualität als auch stabile Vermietbarkeit. Die geplante S-Bahn-Station Rosenhügel und bestehende Linien wie der Bus 62A sichern eine exzellente Anbindung an die Innenstadt ein entscheidender Faktor für langfristige Wertentwicklung. Effizient. Modern. Zukunftssicher. Das architektonische Konzept überzeugt durch klare Linien, natürliche Materialien und CO-neutrale Energietechnik. Ein innovatives Heiz- und Kühlsystem mit Erdwärme und Sonnenenergie sorgt für niedrige Betriebskosten und entspricht modernsten ökologischen Standards ein echter Pluspunkt für nachhaltiges Investment. Ausstattungs-Highlights: Eichenparkett, Holz-Alu-Fenster mit elektrischen Außenjalousien Fußbodenheizung & Kühlung über Bauteilaktivierung Smart-Home-Vorbereitung für moderne Wohntechnologie 23 Tiefgaragenplätze, teils E-Mobility ready Großzügige Freiflächen bei jeder Wohnung: Balkon, Terrasse oder Garten Gemeinschaftsgarten mit Spielplatz & Atelierbereich Zu erwartender Mietertrag von EUR 14,25 bis EUR 15,50 netto/m² Kaufpreise der Vorsorgewohnungen von EUR 189.732,14,- bis EUR 696.428,57- netto zzgl. 20% USt. Provisionsfrei für den Käufer Fertigstellung: 2024 Bei diesem Angebot handelt es sich um eine Vorsorgewohnung, die zu Vermietungszwecken erworben wird. Der angegebene Kaufpreis versteht sich daher zzgl. 20% USt. Diese Daten sind vorbehaltlich möglicher Änderungen. Wir weisen darauf hin, dass zwischen dem Vermittler und dem zu vermittelnden Dritten ein familiäres oder wirtschaftliches Naheverhältnis besteht. Der Vermittler ist als Doppelmakler tätig.Infrastruktur / EntfernungenGesundheitArzt