300.000 Immobilien in Österreich
Österreichs größtes Immobilienportal

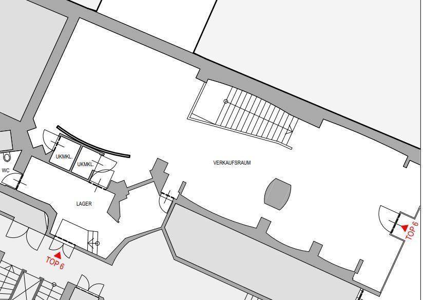
Geschäftslokal auf 2 Etagen in bester Innenstadtlage

Angebot auf Scout24
auf immi.at seit 16.10.2020
Kategorie Geschäftslokal
Adresse 1010 Wien
Wien 1.,Innere Stadt
Wien
Preis EUR 12.205
Preis pro m2 EUR 43,75
Typ Miete
provisionsfrei nein
Fläche 279m2
Räume -

Geschäftslokal auf 2 Etagen in bester Innenstadtlage Nähe Stephansplatz EG: großer Verkaufsraum, 2 Umkleidekabinen, Lager, Toilette 1. UG: großer Verkaufsraum, 2 Umkleidekabinen, Lager, Büro, Toilette mit Handwaschbecken sehr gute öffentliche Verkehrsanbindung Autobus 1A, 2A U1, U3 Stephansplatz 3 Jahre Kündigungsverzicht befristet auf 10 Jahre mit Verlängerungsoption 6 BMM Kaution 3 BMM Provision Energieausweis wird nachgereichtAngaben gemäß gesetzlichem Erfordernis: Miete € 9747,5 zzgl 20% USt. Betriebskosten € 424,02 zzgl 20% USt. Umsatzsteuer € 2034,3 ------------------------------------------------------------------ Gesamtbetrag € 12205,82

Zuletzt besuchte Einträge