300.000 Immobilien in Österreich
Österreichs größtes Immobilienportal

Geschäftslokal in wunderschönem Stilhaus

Angebot auf Scout24
auf immi.at seit 02.09.2020
Kategorie Geschäftslokal
Adresse 1050 Wien
Wien 5.,Margareten
Wien
Preis EUR 3.750
Preis pro m2 EUR 21,07
Typ Miete
provisionsfrei nein
Fläche 178m2
Räume -

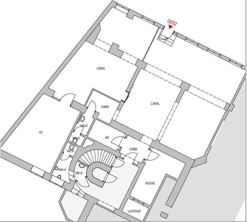
Geschäftslokal in wunderschönem Stilhaus RAUMAUFTEILUNG Lokal, Abstellraum, Küche, Damen Toilette, Herren Toilette, Technikraum/Lager öffentliche Anbindung: U4 Pilgramgasse in Gehdistanz Autobus 12A, 13A und 59A 3 Jahre Kündigungsverzicht befristet auf 10 Jahre mit Verlängerungsoption 6 BMM Kaution 3 BMM ProvisionAngaben gemäß gesetzlichem Erfordernis: Miete € 2668,5 zzgl 20% USt. Betriebskosten € 456,71 zzgl 20% USt. Umsatzsteuer € 625,04 ------------------------------------------------------------------ Gesamtbetrag € 3750,25

Zuletzt besuchte Einträge