300.000 Immobilien in Österreich
Österreichs größtes Immobilienportal

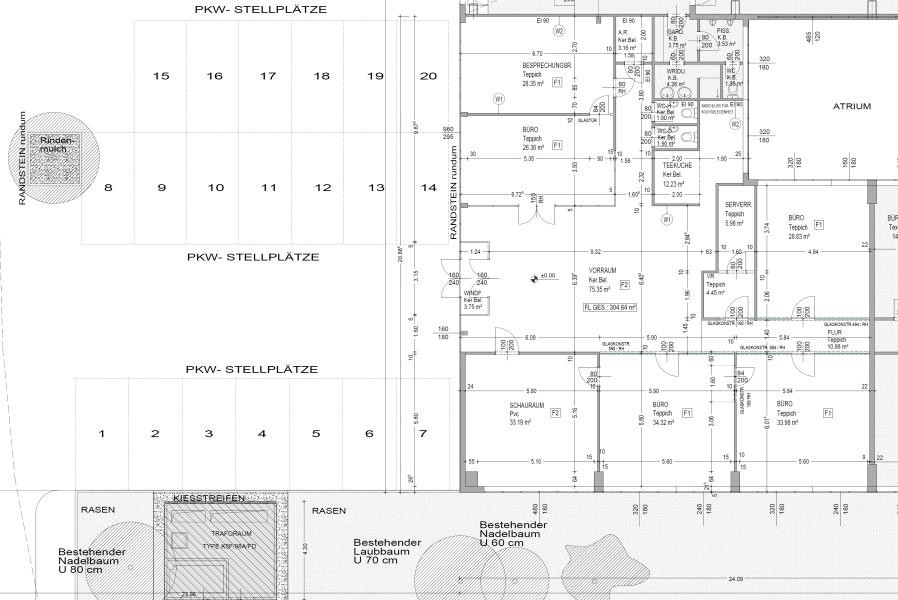
DPC | Bürofläche nähe Wagramerstraße

Angebot auf Scout24
auf immi.at seit 26.03.2020
Kategorie Gewerbe, Büro, Praxis
Adresse 1220 Wien
Wien 22.,Donaustadt
Wien
Preis EUR 3.503
Preis pro m2 EUR 11,49
Typ Miete
provisionsfrei nein
Fläche 305m2
Räume -

Zur Vermietung gelangt eine hochwertige Bürofläche im 22. Bezirk in der Nähe der Wagramer Straße und des Rautenweges. Die Fläche befindet sich im Ergeschoss. Miete Büro: € 3.503,36 Stellplatz: € 390,00 Miete gesamt: € 3.893,36 Betriebskosten: € 2,14/m² inkl. Heizkosten und Reparaturkostenbetirag = € 653,22 zzgl. 20% Ust = € 5.455,90 BRUTTO-Miete Ausstattung: - Vorraum - Büroräume - Besprechungsraum - Schauraum - Teeküche - Abstellraum & Serverraum - getrennte Sanitärräume - Atrium Verkehrsanbindung/Infrastruktur: - U-Bahn: U1 Station Rennbahnweg/Aderklaaer Straße - Bus: 25A, 27A Kaution 6 BMM Provision 3 BMM Kontakt. DPC Immobilien GmbH Tel: 01/904 94 50 office@dpcimmobilien.at www.dpcimmobilien.at ---------------------- Nicht das richtige Objekt für Sie? Besuchen Sie direkt unsere Website www.dpcimmobilien.at und finden über 100 weitere Gewerbeflächen. Wir freuen uns auf Ihre Anfrage! --------------------- Alle Angaben verstehen sich zzgl. der gesetzlichen MwSt.

Zuletzt besuchte Einträge