300.000 Immobilien in Österreich
Österreichs größtes Immobilienportal

Westendorf Neubauwohnung in Zentrumslage mieten

Angebot auf immoads
auf immi.at seit 20.06.2019
Kategorie Dachgeschoßwohnung
Adresse 6363 Westendorf
Kitzbühel
Tirol
Preis k.A.
Preis pro m2 k.A.
Typ Miete
provisionsfrei nein
Fläche 68m2
Räume 3

Neuwertige im Zentrum von Westendorf gelegene Dachgeschoßwohnung mit großer Dachterrasse und Balkon. Trotz der zentralen Lage ist diese Wohnung absolut ruhig gelegen mit ganztägiger Besonnung durch südwestliche Ausrichtung.
Alle Besorgungen des tägliche Lebens sind leicht auch zu Fuß zu erledigen.
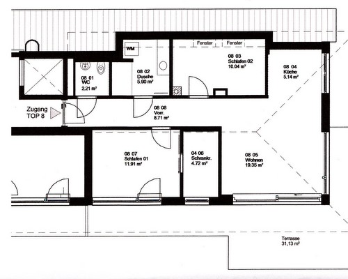
Diese Wohnung besteht aus offener Küche mit Küchenblock, Wohnzimmer, 2 Schlafzimmer wobei ein Zimmer auch als Büro nutzbar ist, Schrankraum, Dusche mit Waschmaschinenanschluß, WC getrennt, Vorraum, große Terrasse mit weitläufigen Balkon, Tiefgaragenplatz, Kellerabteil, Personenaufzug im Haus.
Die Monatsmiete von € 820,-- versteht sich ohne Betriebs- und Heizkosten.
Kaution 3 Monatsmieten, HWB 52,40 kWh/m²a

Zuletzt besuchte Einträge