300.000 Immobilien in Österreich
Österreichs größtes Immobilienportal

NEUBAU BERGERALM - BLICK / 3 ZIMMERWOHNUNG - Top 8

Angebot auf immoads
auf immi.at seit 30.04.2024
Kategorie Wohnung
Adresse 6150 Steinach am Brenner
Innsbruck-Land
Tirol
Preis EUR 439.000
Preis pro m2 EUR 6.013,70
Typ Kauf
provisionsfrei nein
Fläche 73m2
Räume 2

NEUBAU - DREIZIMMERWOHNUNG 

Im Tiroler Wipptal, dem Verbindungstal zwischen Innsbruck und Südtirol, liegt ca. 20 Autobahnminuten entfernt die Gemeinde Steinach am Brenner. An der Sonnenseite oberhalb des Dorfzentrums befindet sich dieses von Nord nach Süd geneigte 1.129 m² große Baugrundstück, auf welchem der renommierte Bauträger Wipptalbau ein Projekt im modernen Landhausstil und Niedrigenergiebauweise mit insgesamt 9 Einheiten errichtet.

Das Gebäude gliedert sich in zwei separate Baukörper, welche durch ein gemeinsames Stiegenhaus miteinander verbunden sind. Ein zentral gelegener Personenaufzug bringt Sie bequem in jedes der oberirdischen Geschoße. Die 9 Wohneinheiten erstrecken sich über Erdgeschoss plus 1. Obergeschoss plus Dachgeschoss mit hohen Dachräumen. Der Rohbau ist bereits vollendet. Die Innenraumeinteilung der einzelnen Tops ist noch individuell wählbar, ebenso die Elektro- und Sanitärinstallationen.

Abänderungen der Innenraumaufteilung sowie Änderungen der Ausstattung (gegen Auf- oder Minderpreis) sind in der Ausbauphase noch möglich. Die Fertigstellung ist für Herbst 2024 geplant.

Die hier angebotene Gartenwohnung liegt im EG und ist ost-süd ausgerichtet.

Im Untergeschoss befinden sich die Kellerabstellräume. Die Tiefgarage bietet Platz für 11 Autos, weitere 3 KFZ-Abstellplätze sind im Freien angelegt. Der Fahrradraum befindet sich im Erdgeschoss.

Durch die ansprechende Architektur, Ausstattung und Nachhaltigkeit wird diese Wohnanlage zu einem begehrten Wohnobjekt.

Der Tiefgaragenabstellplatz ist für je € 27.500,00 und ein Autoabstellplatz im Freien für je € 7.500,00 erwerbbar.

Ausstattung:

Gerne stellen wir Ihnen bei näherem Interesse die Bau- und Ausstattungsbeschreibung zur Verfügung.

 

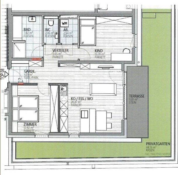
Raumaufteilung TOP 08 / 3ZI-EG    KP € 439.000,--

ca. 72,95 m² Wohnfläche teilen sich wie folgt:

  • Verteiler / Gangbereich ca. 3,65 m²
  • Garderobe ca. 4,19 m²
  • offener Koch- Wohn- Essbereich ca. 26,87 m²
  • Zimmer ca. 13,70 m²
  • Zimmer ca. 12,92 m²
  • Bad ca. 7,02 m²
  • WC ca. 2,06 m²
  • AR ca. 2,54 m²

Kellerabteil ca. 6,12 m², Terrasse ca. 9,81 m², Garten ca. 44,16 m²

Sie sind interessiert an einer ausführlichen Beschreibung oder Besichtigung? Kontaktieren Sie mich noch heute - ich freue mich auf Ihre Anfrage!

Peter Jenewein
office@immobilien-jenewein.at
M +43 664 / 110 8 200
 

BEREITS VERKAUFT: TOP 03, TOP 5, TOP 07, TOP 09


Kauferwerbsnebenkosten:
Lt. Beiblatt und insbesondere
3,5 % Grunderwerbssteuer
1,1 % Grundbuchseintragungsgebühr

2,0 % Vertragserrichtungskosten zzgl. Barauslagen
3,0 % zzgl. 20 % USt Erfolgshonorar seitens Immobilienmanagement Jenewein GmbH


Anmerkungen:
Die angeführten Angaben und Informationen dienen lediglich als unverbindliche Vorinformation und bleiben somit ohne jedes Gewähr. Die Angaben erfolgen aufgrund jener Informationen und Unterlagen welche Immobilienmanagement Jenewein GmbH von Dritten zur Verfügung gestellt wurden.

Wir weisen darauf hin, dass zwischen dem Vermittler und dem zu vermittelnden Dritten ein familiäres oder wirtschaftliches Naheverhältnis besteht.

Der Vermittler ist als Doppelmakler tätig.

Zuletzt besuchte Einträge